Gaharu 沉香 Agarwood
Sustainable Cultivated Agarwood
Skip to content
Home
Introduction
Knowledge
My farm
History
Contact
Location
Species growth comparison
Sinensis growth
Farm view
Fast growing tree
Stunted tree
Sinensis fruiting
Private site
Study tour
China
Malaysia
Thailand
Why Agarwood
Cultivated agarwood
Species and distribution
Artificial inoculation
Agarwood Harvest
Basic idea
Cultivated Farm A
Cultivated Farm B
Oil refining process
Result of inducement
9 months
11 months
24 months
Seed of aquilaria
Germinate gaharu seeds
Application
Many uses
Burning Agarwood
Oudh oil 1
Oudh oil 2
用途价值
Planting Distance
Planting method
Manuring program
Pruning
Disease
Armyworm
Clay soil
Dysdercus
Fungal attack
Mealybugs / Scale insects
Pink Disease
Poor drainage
Root coiling
Root-knot Nematode
Sooty moulds
Stem borer
Termites
White Root Disease
Fake Agarwood
Gaharu Buaya
Method of cheating
Oudh Oils
Steamed Agarwood
Black Magic Wood
Foreign objects
Unknown wood
Kynam
Kynam-xiang
Kynam species
Plantation
Harvest
Resin Formation
Seedling 奇楠苗
Kynam Product
FAQ
Farming products
Bamboo stick inducer
Biopesticide
Chitosan
Effective Microorganisms
What is EM
EM application
Neem Oil
Phyto-E
Trichoderma
Inoculant
Agar-SIT
Agar-WIT-215
Agar-WIT-635
Mini pump
Potassium Phosphite 亚磷酸钾
Seedlings
Ordinary species
End products
Agarwood chips 沉香
Wild natural 天然野生
Sinking grade 沉水级
Tigerwood 虎纹
Pattern wood 沉香收藏
Incense grade 品香级
Cultivated 人工培育
Agarwood powder 沉香粉
Distillation
Condensor
Allihn condensor
Graham condensor
Funnel
Pot still
Commercial pot
Mini pot
Earthen jar
Slicing machine
Oud oil 沉香油
Cultivated 人工培育
Product Knowledge
沉香和沉香木的概念
沉香木的鉴别方法
假货沉香
Agarwood compound
Composition
Extraction method vs compound
Key compounds
Appendices
Bracelet / beads
Measurement
Weight
Business opportunity
Defination of Sinking
Density
Distillation
Fragrance notes
Management Authority
Multi-stage inoculation
Oudh quality
Ouducation
Recovery
Sinking wood 沉水
Polybag size / weight
Video
创业观念
生病木头_贵比黄金
中国沉香树结香技术
沉香树结香剖面情况
Beauveria bassiana
EM introduction
Illegal poachers in Penang
Miracle NEEM
Nematodes
Farming
Products list
Mode of Action
Durian disease
植物中NH4+的毒害
Ammonium Toxicity
Akar Putih
Antraknos
Boron toxicity
Bintik Agla
Cendawan angin
Hawar daun
Kanker Batang
Durian Expenses
Durian Pests
Belalang
Durian Psyllid
Kumbang
Hamama
Tumo
Ulat (caterpillars)
Anthracnose
露菌病
Downy (English)
Downy (Malay)
Mites
Thrips
Whiteflies
Nitrate versus ammonium
←
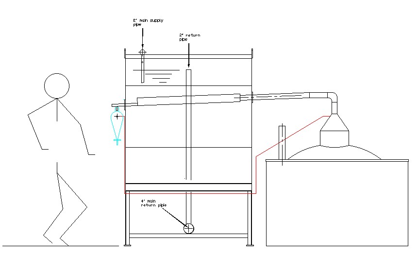
Commercial pot
50kg pot
By
tshinkou
|
Published
August 24, 2025
|
Full size is
861 × 558
pixels
50kg pot
50kg pot
Like
Loading...
Bookmark the
permalink
.
Leave a comment
Cancel reply
Δ
Subscribe
Subscribed
Gaharu 沉香 Agarwood
Join 143 other subscribers
Sign me up
Already have a WordPress.com account?
Log in now.
Gaharu 沉香 Agarwood
Subscribe
Subscribed
Sign up
Log in
Copy shortlink
Report this content
View post in Reader
Manage subscriptions
Collapse this bar
%d